









Descripción Vivienda Colectiva
Ubicación Saavedra, Buenos Aires, Argentina
Superficie 900 m2
Equipo Florencia Lopez Iriquin, Natalia Kahanoff, Lucila Ottolenghi, Luciana Casoy, Jimena Jalife, Dina Zvik
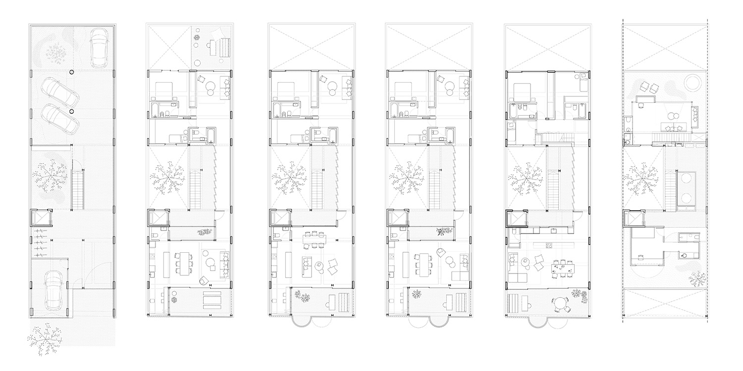
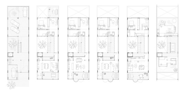
El proyecto se inserta en una manzana de Saavedra que bordea uno de los pulmones verdes más grandes y abiertos de la Ciudad de Buenos Aires. Cada vivienda se desarrolla en una planta para desplegarse en todo el lote en relación con el recorrido del sol. El espacio de mayor sociabilidad se ubica al frente y en relación al parque. Se retira de la línea municipal para generar una profunda expansión semicubierta que toma 3 de los 4 módulos en los que se divide la fachada. Uno de estos se conforma en un extremo como interior de cocina para generar una conexión cotidiana entre la vida doméstica y la vista al parque. El bloque del contrafrente, hacia el este, contiene los espacios de estar más íntimos y de habitaciones. Estos dos mundos se conectan a través de una circulación horizontal que rompe con la idea de pasillo tradicional y se proyecta en relación al ingreso de luz natural a través de una sucesión de muros de ladrillos dispuestos en diagonal que permiten diferentes visuales según se recorra.
El bloque del frente también añade a las expansiones, unos semicírculos de pasto que vuelan sobre la vereda como un guiño al parque, unos miradores desfasados en altura. La materialización surge del trabajo con mampuestos y ensayos en sus trabas para generar tamices de luz e intimidad. El sistema constructivo se mixtura en busca de una continuidad entre losas sin vigas y con columnas metálicas para generar la mayor amplitud visual posible.