







Descripción Vivienda Unifamiliar
Ubicación Jose Ignacio, Uruguay
Superficie 150 m2
Equipo Florencia Lopez Iriquin, Natalia Kahanoff, Lucila Ottolenghi, Luciana Casoy, Jimena Jalife
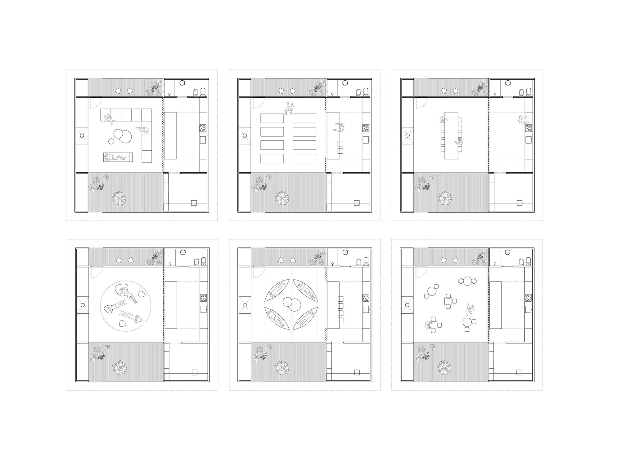
El proyecto surge de la necesidad de tener un espacio para el ocio y recreación alejado de la vivienda existente en un terreno ubicado en José Ignacio, Uruguay. Se emplaza frente a un lago y se propone elevarlo para generar mayor intimidad por un lado y cercanía con la copa de los árboles por otro. Un gran espacio central y flexible se ubica bajo un techo a 4 aguas con una entrada de luz cenital y unas franjas con funciones mas específicas y determinadas lo rodean.